Open Monday 9th Feb 7pm -7.30pm Make an offer before you miss out.
Exciting, home currently tenanted, offering holding income while planning future development. Rare opportunity set in a tightly held and rapidly evolving location, 5 Jacob Street, Marion presents a chance to secure a substantial allotment with the potential to develop 2 or 3 new homes (STCC) and lifestyle amenities nearby.
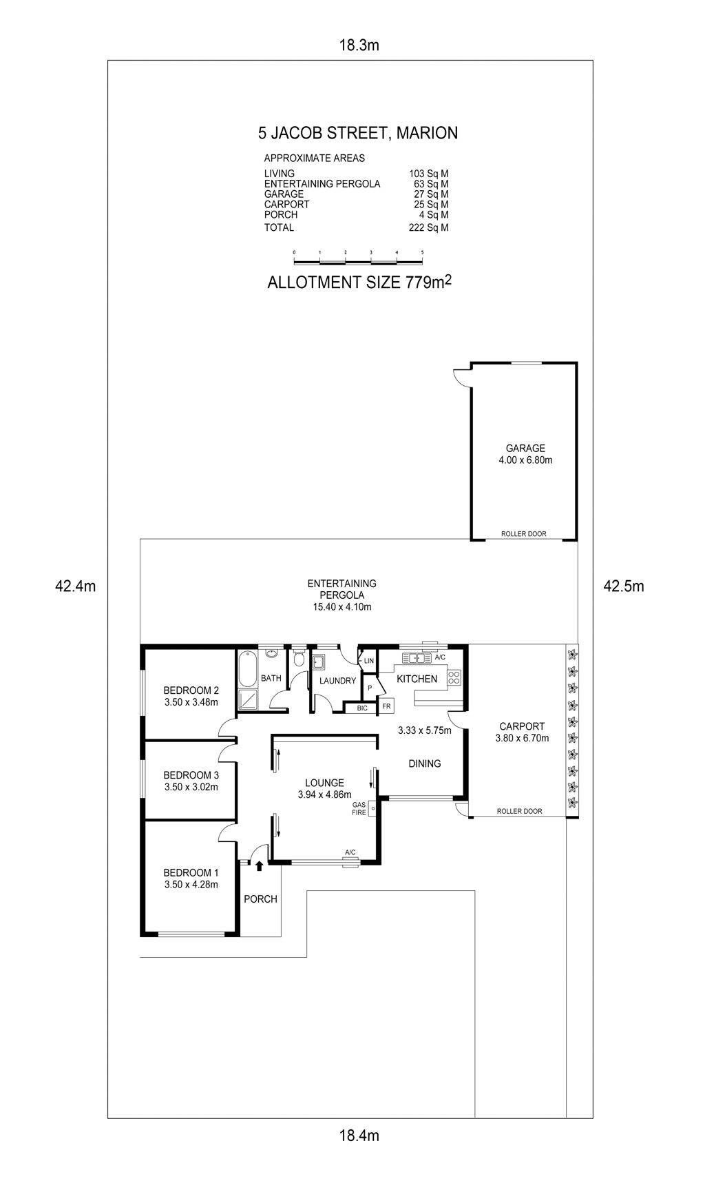
Set on a generous 800sqm (approx.) this is perfectly positioned for families, investors, or developers seeking premium location, lifestyle convenience, and future growth. With the potential to renovate or build (subject to council consent), this property offers immediate rental income while unlocking incredible long-term value.
The existing three-bedroom, one-bathroom home features a large lounge, kitchen and dining area, garage, and tandem carport, providing practical living and holding potential while you plan your next move.
What you will love:
-800sqm (approx.) allotment with strong redevelopment scope
-Potential for 2-3 new dwellings (STCC)
-Currently tenanted – earn rental income immediately
-Solid home ideal for holding, renovating, & subdivision! You decide.
-High-demand suburb with ongoing infill development
Lifestyle & Location Highlights:
-Close to Westminster School and other quality schools
-Minutes to Flinders University & Flinders Medical Centre
-Quick access to the Adelaide CBD via major roads and public transport
-Short drive to Westfield Marion Shopping Centre for shopping, dining, and entertainment
-Near beaches of Brighton and popular Glenelg, parks, and family-friendly recreational facilities
– Flinders University and Flinders Hospital
Perfect balance of convenience, lifestyle, and growth potential
Properties like this rarely come to market in Marion. Don’t miss your chance to secure a tenanted home with immediate income and future development upside.
Best Offers invited by Monday, 11/2/26 at 10am (Unless Sold Prior)
To inspect or submit an offer before it’s gone, call Ashley Williams today 0450327772
Disclaimer: All images are for illustration purposes only. All descriptions have been prepared in good faith. No warranty or representation is given as to the correctness of the information provided with neither the vendor or agent accepting responsibility or liability for any errors or omissions. Purchasers should seek independent advice or as otherwise necessary prior to purchase.
RLA 280800


