Open Tue 4.30pm to 4.45pm
Perfectly positioned in one of Seaview Downs’ most elevated pockets, this beautifully updated family home offers bright modern interiors, multiple living zones and jaw-dropping panoramic ocean views from almost every angle.
FAST FACTS:
RENT: $800 per week
BOND: $3,200
AVAILABLE: 27/01/2026
Lease term: 12 months
Owner has not entered into a sales agency agreement of this premises
Water Charges: Tenant to pay supply and all water usage water
INSPECTION: To view this property, click on the Get in touch button and we will email you available inspection times, if no times are advertised.
HOW TO APPLY FOR THIS PROPERTY
Please select the APPLY button on the realestate.com.au advertisement. Your application will not be processed unless you have:
• viewed the property in person
• photo ID has been provided
• all information requested has been provided
Fully furnished
Apply online
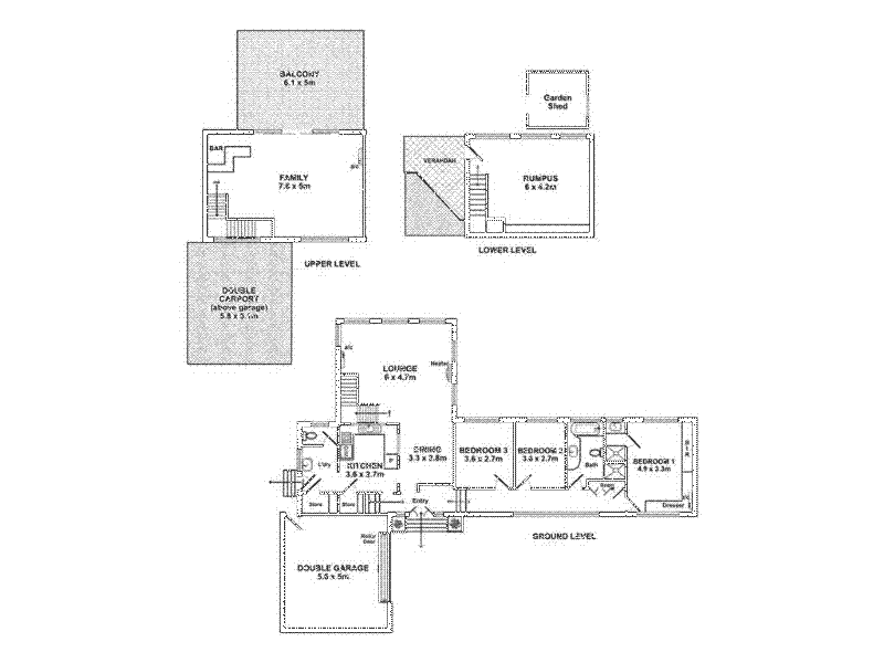
Set across a split-level design, this home provides generous space, low-maintenance living and a coastal lifestyle only minutes to Brighton Beach, Westfield Marion, Flinders University & Hospital.
Property Features
Living & Entertaining
• Light-filled open plan living/dining with expansive windows framing the sea views
• Modern kitchen with stone benchtops, island bench, dishwasher & great storage
• Polished timber floors throughout the main level
• Large balcony/terrace capturing sweeping coastline and suburban views – perfect for sunset entertaining
• Lower-level rumpus room/teen retreat with separate access
Bedrooms & Bathrooms
• 3 spacious bedrooms (master with ensuite & built-in robe)
• Stylishly updated main bathroom with full-size bath
• Separate laundry
Outdoor & Parking
• Huge upper-level viewing deck with uninterrupted ocean panorama
• Large rear yard with lawn and space for the kids
• Double garage + additional driveway parking
• Elevated allotment offering privacy and spectacular outlooks
Location
• Minutes to schools, kindergartens, and parks
• Quick access to Seacliff, Brighton & Westfield Marion
• Easy commute to Flinders University, Flinders Medical Centre and the CBD
More information Call Ashley – 0450 327 772.
Disclaimer: All images are for illustration purposes only. All descriptions have been prepared in good faith. No warranty or representation is given as to the correctness of the information provided with neither the vendor or agent accepting responsibility or liability for any errors or omissions. Purchasers should seek independent advice or as otherwise necessary prior to purchase.
RLA 280800 ABN 34634113165
